Tuesday, February 14, 2017

Jopling House, by Claude Megson

 

TErrace1

Way back in 1965 when a young Claude Megson was still finding his architectural feet, he was commissioned by the Joplings to design a small family home in St Heliers.The NZIA’s Megson Guide takes up the story:

Standing on a sheltered back site on Achilles Point, this house won a NZIA Branch Award in 1965. The building is composed of “units” of timber-framed walls of various lengths with a return at each end. Separated from each other by full-height windows or doors, these repeated elements are deployed to create spaces with different orientations and varying qualities of enclosure and interconnection. The original landscaping included pebble gardens and fishpond which allowed the volumes of the house to “float” above the site.

KitchenDining01

Jopling002

With several large additions at the front (large garage and a closed-in carport) that small home is now a large home, and the oiled cedar cladding has been painted over, but the small jewel Megson created is still to be found there behind it all, and in almost original form thanks to the current owners, Ruth and Duncan Ormond, who [ as the Herald explains] have done much to bring it back from the state in which they found it.

When Ruth was in her teens, she had the chance to look through a new cedar-clad home designed by Claude Megson and built in 1965.
    This is that house. Built for the Jopling family on a sheltered back section, it was Megson's second residential commission..   
    From time to time Ruth always thought it'd be great to live in that house and some 30 years on from that first viewing, Ruth and Duncan learned the house was for sale….
    The Ormonds have [now] lived here almost half the life-time of this house and they have decided to hand its place in architectural history over to another family.

It goes to auction today – when hopefully another family will be able to enjoy what remains of Megson’s creation, which is a great deal, with many of the features already there in this house that were to become so much a part of his work.

Jopling-AbstractPlan

"It's like a Lego home but you can look right through the house from one end to the other wherever you are standing," says Ruth.
    Original features include exposed timber beams, built-in furniture and shelving and the circular moulded door handles.

Lounge1

Those built-in modules allowing a more direct relationship with the garden; the artful yet effortless-feeling negative detailing; the shafts of space through the interlocking parts of the house – open space contrasting dramatically with sheltering -- were to become a Megson trademark, making even the smallest of homes feel large-souled.

Jopling010

That’s how we felt when we visited over the weekend: the house, like our visits to all Megson’s houses, with their simple ingredients so carefuly arranged to create a home for the human soul, never failing to lift our spirits.

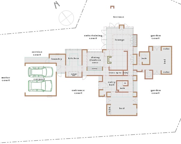
16026-JoplingHousePlan

Almost impossible to describe in a photograph, the most successful of the spaces in this early home is his double-height dining room with built-in servery and direct garden access, a space whose essence Megson says is celebration, containing in this very early example the seed germ of everything that was to come in his later work. It is a delightful space to be in.

Dining1

Dining2

[Pics from PC, Herald, and Ray White Real Estate]